СВ 85

Чертеж изделия:
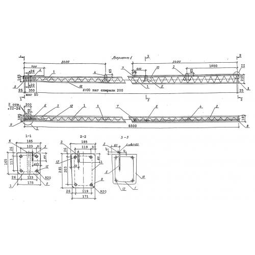
Характеристики изделия:
ПараметрЗначение
длина8500 мм
ширина185 мм
высота255 мм
масса800 кг
нормативный документШифр 20.0139

СВ 85 Стойки вибрированные по Шифру 20.0139.