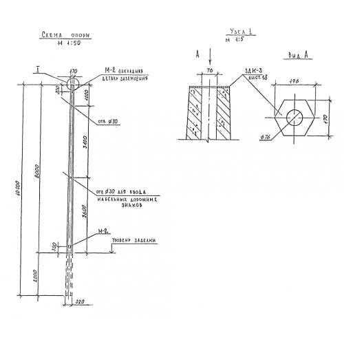
СВ 100

Чертеж изделия:
Характеристики изделия:
ПараметрЗначение
длина10000 мм
ширина370 мм
высота427 мм
вес1100 кг
серия3.507 КЛ-10

СВ 110 Стойки вибрированные по серии 3.507 КЛ-10.