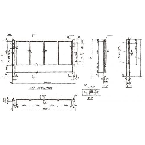
П 5 панель ограждения

Чертеж изделия:
Характеристики изделия:
ПараметрЗначение
длина3980 мм
ширина160 мм
высота2900 мм
масса1275 кг
нормативный документСерия 3.017-1

П 5 Панели оград Серия 3.017-1.