ПСД 60.6.50
Характеристики изделия:
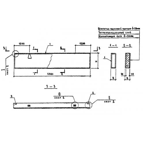
| Параметр | Значение |
|---|---|
| длина | 5980 мм |
| ширина | 500 мм |
| высота | 580 мм |
| вес | 3300 кг |
| серия | 1.832.1-9 |
Цена:
Рассчитать стоимостьПСД 60.6.50 Панели стеновые двухслойные по серии 1.832.1-9.
| Параметр | Значение |
|---|---|
| длина | 5980 мм |
| ширина | 500 мм |
| высота | 580 мм |
| вес | 3300 кг |
| серия | 1.832.1-9 |
ПСД 60.6.50 Панели стеновые двухслойные по серии 1.832.1-9.
