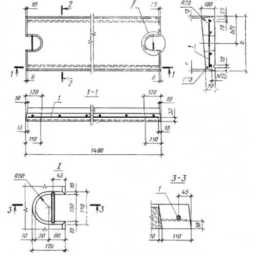
ПП 15.4 парапетные плиты
Характеристики изделия:
| Параметр | Значение |
|---|---|
| длина | 1490 мм |
| ширина | 400 мм |
| высота | 100 мм |
| масса | 96 кг |
| нормативный документ | ГОСТ 6786-80 |
Цена:
Рассчитать стоимостьПП 15.4 Плиты парапетные ГОСТ 6786-80.
| Параметр | Значение |
|---|---|
| длина | 1490 мм |
| ширина | 400 мм |
| высота | 100 мм |
| масса | 96 кг |
| нормативный документ | ГОСТ 6786-80 |
ПП 15.4 Плиты парапетные ГОСТ 6786-80.
